Remodeling a kitchen can be an exciting and rewarding undertaking. See the Cabinet design layout page for help with the specifics of cabinet layout.

Design Rules Design Rules Design Design Guidelines
Turn your dream kitchen into reality by following this handy planning guide.

Kitchen Design Guidelines. These guidelines are excerpted from the National Kitchen Bath Association Professional Resource Library Kitchen Planning and. Design Ideas for an L-Shaped Kitchen An L-shaped kitchen works well where space is limited. 3Trade Professionals Select ted trade professionals to achieve the desired outcome.
A kitchen must have at least one wall-switch controlled light with the switch placed at the entrance. Rule 1 - Kitchen Entry Doors. Memorize or bookmark CtrlD these kitchen layout rules and use it in conjunction with your own kitchen layout.
Universal Design emphasizes making your kitchen accessible to young children elderly parents and a variety of guests. For example make traffic lanes such as hallways and doorways extra wide. The critical placement of cabinets appliances and sinks that allow for the best usage of a working space.
Kitchen Design Guidelines for Electrical and Ventilation All receptacles servicing countertop areas require GFCI ground-fault circuit interrupter protection. Doing so will accommodate unexpected future needs like twins in a. Top 5 tips from kitchen design professionals on kitchen design 2017 So you want to design the perfect kitchen but where do you start.
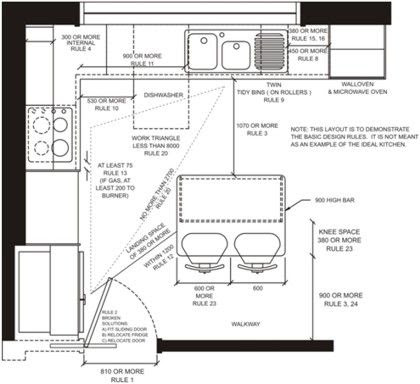
These rules are not set in concrete and you can vary the distances but they should be considered minimum workable distances. Rule 1 - Your kitchen should not be the main thoroughfare to the rest of your home. The NKBA Kitchen Bathroom Planning Guidelines is a collection of planning suggestions to help effective planning of kitchens and bathrooms.
Kitchen Design 101. 2020 April 11 2017 2020 Blogs 2020 Design Home Design Remodeling Kitchen Bath. It defines the rules for kitchens intended for use by persons with less than full physical abilities.
2Showroom Experience Learn what to expect during your showroom visit. This layout lends itself to the addition of an island and allows the kitchen. 19 Family-Friendly Kitchen Design Ideas.
4Floor Plans Space Design Make the most of your kitchen layout with these space-planning tips. Get an official copy of the consolidated Kitchen Bathroom Planning Guidelines. A Guide on How to Design a Kitchen.
There are a few basic principles that need to be kept in mind to avoid costly mistakes and to ensure a well designed and user friendly work place. Breakfast nooks and central islands provide ample seating in these inviting family kitchens. 2020 sat down with 5 kitchen design and bath professionals and.
The Universal Design Guideline Access Standard is a relatively new addition to the guidelines. This is a slideshow with 19 slides. Kitchen Design Guidelines are the suggestions of how to layout a function-able kitchen.

Kitchen Cabinets Design Layout Kosher Kitchen Design Kitchen Design Plans

Pin On 14 Kitchen Design Guidelines Illustrated

Fundamental Kitchen Design Guidelines To Know Before You Remodel Small Kitchen Plans Small Kitchen Layouts Best Kitchen Layout

Pin On 14 Kitchen Design Guidelines Illustrated

Pin On 14 Kitchen Design Guidelines Illustrated

Kitchen Renovation Space Planning Tips Ideas Remodeling Design Guidelines Kitchen Design Space Planning

Kitchen Design Rules Kitchen Triangle Design Rules Kitchen Work Triangle

Architectural Standards Library Amit Murao Design Rules New Kitchen Designs Modern Kitchen Design

Kitchen Standards In Accordance With The Nkba Guidelines Best Online Engineering Resource Kitchen Layout Plans Kitchen Dimensions Kitchen Floor Plans

8 Design Guidelines For A Functional And Safe Kitchen Design Rules Kitchen Safe Modern Kitchen Design

Kitchen Standards In Accordance With The Nkba Guidelines Architecture Admirers Kitchen Interior Kitchen Design Plans Kitchen And Bath Design

8 Design Guidelines For A Functional And Safe Kitchen Design Rules Kitchen Safe Modern Kitchen Design

The Thirty One Kitchen Design Rules Illustrated Homeowner Guide Design Build Kitchens Baths Additions Kitchen Layout Plans Kitchen Plans Kitchen Layout

8 Design Guidelines For A Functional And Safe Kitchen Design Rules Kitchen Safe Design Guidelines

14 Kitchen Design Guidelines Illustrated 3 Design Guidelines Free Kitchen Design Clean Kitchen Design

Kitchen Rule 1 Figure 1 Kitchen Design Kitchen Rules White Apron Sink

The Thirty One Kitchen Design Rules Illustrated Homeowner Guide Design Build Kitchens Baths Additions And H Design Rules Homeowners Guide Kitchen Design

Kitchen Countertop Layout Design Remodel Design Guidelines Design Remodel Design Your Kitchen

